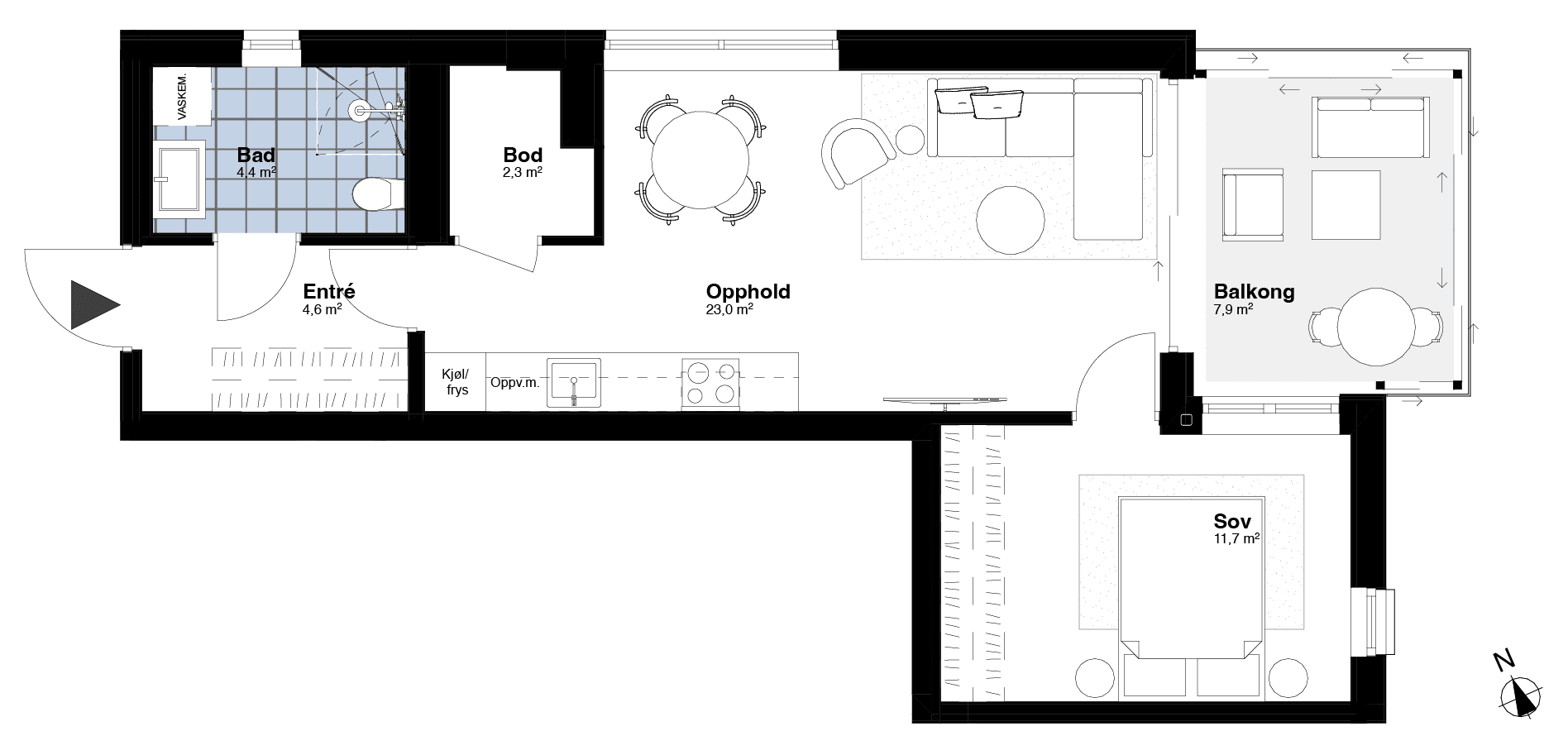
0504
Solgt
Status
Solgt
ID
0504
Pris
Innskudd
1 975 000
Andel fellesgjeld
1 975 000
Soverom
1
BRA kvm.
60,4
BRA-i m²
48,2
BRA-b m²
9,7
Type
Andelsleilighet
Etasje
5
Fellesutgifter pr. mnd. første 10 år
12 410
Fellesutgifter pr. mnd. etter 10 år
17 896
Omkostninger
20 139,5
